
Мы уже убедились, что строить по проекту намного выгоднее и безопаснее, чем без него — об этом читайте в нашей статье “Зачем нужен проект”. Время поговорить о том, что собой представляет проектная документация. Какие ее части обязательны, а какие нет? Предложений на рынке много и велик соблазн сэкономить. Но покупка проекта, в котором не хватает хотя бы одной важной части — выброшенные деньги. Почему?
Хороший проект позволяет создавать из простых материалов сложные системы. Это подробная инструкция, где каждый шаг рассчитан и ведет именно к тому результату, который нужен. Ключевое слово здесь — “каждый”.
Как устроено ребро жесткости в фундаменте? Какого сечения несущая балка? При строительстве такие вопросы возникают постоянно и ни на один из них не могут отвечать сами строители. Все ответы должны быть в проекте.
Если в документации отсутствует хотя бы один узел или элемент конструкции, это значит, что специалисты его не рассчитали и не продумали. А это ставит под сомнение надежность всей конструкции — мелочей в строительстве не бывает. На каждый элемент или узел нужен отдельный чертеж, схема или инструкция. Из проекта должна следовать ясная последовательность, в которой нужно строить. Только тогда дом получится именно таким, каким был задуман, спроектирован и рассчитан.
Архитектор Грандхауса Наталья Мостовая за работой. Иллюстрации и скриншоты ниже взяты из разработанного ей проекта одноэтажного дома.
Начать изучение этой сложной темы лучше с примера полного и качественного проекта, который можно посмотреть на нашем сайте. Ниже подробно описан состав проекта и назначение каждого его раздела.
Обычно проект состоит из трех основных частей:
- Архитектурный раздел (АР) — определяет внешний вид и расположение комнат, посадку дома на участок. Эта часть документации отвечает на вопрос “что строим”.
- Конструктивный раздел (КР) — содержит все разработанные инженерами конструкции и узлы из которых состоит дом, этапы строительства, их последовательность, необходимые материалы и их количество. Эта часть проекта отвечает на вопрос “как строим”.
- Инженерные системы (ИС) — сюда входят чертежи инженерных коммуникаций, планы расстановки сантехнических приборов, светильников и т.п.
Содержание проекта, разработанного Грандхаусом. 66-страничный документ включает в себя архитектурный и конструктивный разделы.
Что такое архитектурный раздел (АР)
Архитектурный раздел определяет, как дом будет выглядеть изнутри и снаружи. Это, как следует из названия, зона ответственности архитектора. Он должен не только придумать внешний облик здания, но и детально рассчитать все его размеры. Дом, построенный без расчетов может преподнести сюрпризы: где-то дверь не войдет в проем, где-то не поместится мебель, а где-то и хозяин дома не сможет протиснуться.
Архитектор, конечно, учитывает пожелания заказчика, но не слепо, а так, чтобы жить в доме было комфортно. Хороший специалист попробует отговорить клиента от строительства пятиэтажного сруба или крепости с метровыми стенами из железобетона.
Представления об удобстве, привычки и ритм жизни у всех разные, поэтому разработка проекта начинается с большого количества вопросов, которые архитектор задает заказчику:
- Сколько человек будут жить в доме?
- Какой у каждого из них режим дня?
- Сколько в доме детей и какого возраста?
- Сколько пожилых членов семьи?
- Как часто вы обедаете всей семьей? Принимаете гостей? и т.п.
Чем больше вопросов, тем точнее будет представление архитектора о вашей семье и тем полнее он сможет удовлетворить ее потребности. Не ждите, что архитектор сам «залезет» вам в голову. Ваша задача — вспомнить о важных мелочах и проговорить вслух все пожелания, чтобы перенести их на чертёж.
Учтите, что многие детали всплывут уже в процессе работы, поэтому первые наброски редко доживают до финала без изменений. Что-то наверняка нужно будет доработать, поменять или убрать — это нормально. Главное, согласовать все до того, как начнется работа над конструктивным разделом.
Разработка проекта с нуля — дело долгое и непростое. Но на рынке много типовых или просто уже реализованных проектов. Вполне возможно, какой-то из них подойдет вам — тогда получится сэкономить. Типовые проекты не становятся таковыми случайно: в основе как правило лежит очень успешное и тщательно проработанное решение. Важно только, чтобы такое решение устраивало вас полностью — любая переделка может потребовать перерасчета всего проекта, что сведет экономию на нет.
Пример индивидуального проекта "Онегин", разработанного под конкретного клиента
Что входит в архитектурный раздел?
План застройки участка. Расположение дома должно соответствовать нормативам, быть рациональным и удобным — подробнее об этом читайте в нашей статье “Как посадить дом на участок”. Сейчас в большинстве случаев разрешение на строительство получать не нужно — действует уведомительный порядок. Но это не значит, что в ответ нельзя получить уведомление о несоответствии планируемого строительства нормам или Генплану. Хороший архитектор поводов запретить стройку не даст, дом сделает светлым и гармонирующим с окружающим ландшафтом.
План застройки участка
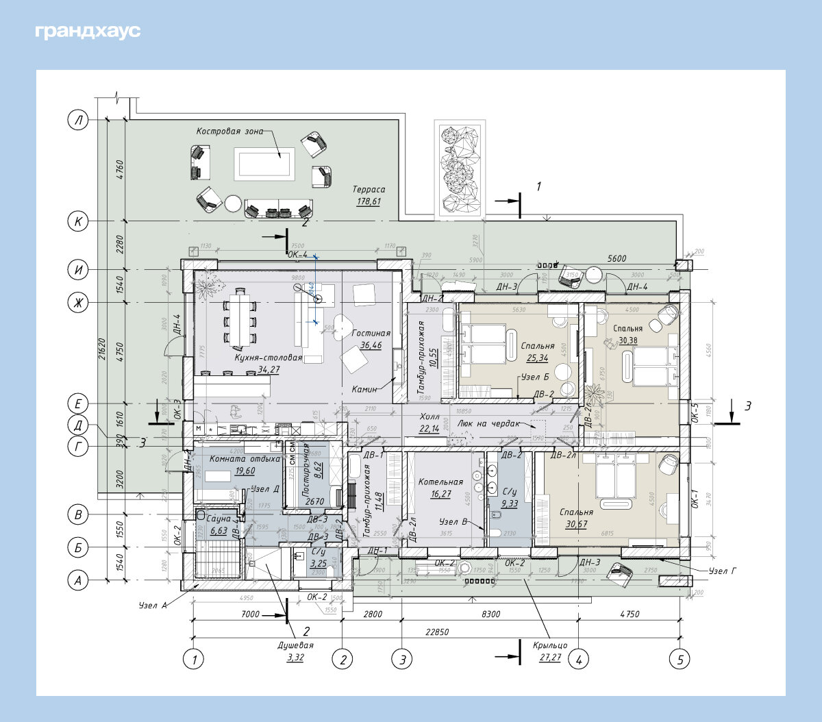
Планы этажей. На плане каждого этажа отмечают, где располагаются помещения, каковы их назначение и площадь, где будут окна и двери. Должен быть указан так называемый “состав стен” — какие стены несущие и самонесущие, какие ограждающие, где находятся перегородки. Если стена многослойная, обязателен чертеж или схема, описывающая устройство ее “пирога”.
На поэтажных планах указывают расположение вентиляционных каналов, дымоходов (если в доме предусмотрен камин, газовый или твердотопливный котел).
Качественный проект обязательно включает план расстановки мебели. Если его нет, может оказаться, что размеры и форма помещений рассчитаны неправильно и мебель либо вообще в них не влезет, либо ее не удастся разместить удобным для человека образом.
2D план помещений
В АР входит план пола с указанием его типа, экспликация (то есть таблица с описанием того, что нанесено на чертеж) и вертикальный разрез “пирога” пола. Должна быть указана “нулевая отметка” от которой в проекте отсчитываются все высоты.
Отметка чистового пола на разрезе
АР должен содержать эскизы и спецификации оконных и дверных проемов с их точными размерами и схемой открывания.
Фасады. Не путайте с визуализациями! Фасады здания редко выполняют в виде чертежей. Скорее, это точный рисунок, изображающий каждый фасад на вертикальной плоскости с сохранением всех пропорций. Часто такие изображения делают цветными. На фасадах проставляют высотные отметки — они указывают высоту оконных проемов, цоколя, стен, крыши, какой высоты все здание и т.п. Фасады дают представление об отделочных материалах. Если проект предусматривает декоративные элементы — лепнину, мозаику, подсветку и т.п. — они должны присутствовать на чертежах. Сложные элементы представляют на отдельных эскизах и чертежах.
Фасады
В хорошем проекте должны быть визуализации здания — рисунки или трехмерные модели (в электронном варианте). Они дают заказчику четкое представление о том, как дом будет выглядеть в реальности.
3D-визуализации
Разрезы. Представляют собой чертежи здания (иногда и детально по стене) в вертикальной плоскости. Название говорит само за себя: дом как бы разделяют надвое невидимой стеклянной стеной — это и есть, вертикальный разрез. На нем указывают высоты потолков и перекрытий, оконных и дверных проемов, глубину подвала и т.п.
В разрезах указывают не только высоты, но и состав фундамента, перекрытий, крыши — то есть, подробные схемы, дающие представление о том, из чего состоит конструкция и как она устроена. Должны быть отмечены даже такие “мелочи” как толщина стяжки и всех слоев покрытия пола, включая финишное. С помощью правильно выполненных разрезов легко понять, будет ли открываться дверь под лестницей или в каком месте чердака можно встать в полный рост.
Пример разреза
Конструктивный раздел (КР)
Конструктивный раздел, это и есть собственно, инструкция по строительству дома. Здесь детально описаны все этапы стройки, конструктивные элементы, из которых состоит дом и узлы, которыми эти элементы связаны.
Отвечает за КР инженер-конструктор. Он рассчитывает параметры всех несущих конструкций с учетом нагрузок и отвечает за то, чтобы дом был безопасным и простоял много лет.
Имея КР строителям не придется гадать, как выполнить тот или иной элемент или узел — достаточно заглянуть в соответствующий чертеж и все станет ясно.
В КР перечислены все необходимые для постройки дома материалы, их размеры, качество и точное количество на каждом этапе строительства. Например, сколько для фундамента потребуется арматуры, какого диаметра, сколько песка, щебня, утеплителя, сколько бетона, какого он должен быть качества и марки… Здесь не бывает мелочей: хороший проект учитывает не только объем и характеристики материала, но и указания по производству работ.
К началу работы над КР архитектурная часть должна быть уже согласована: любые поправки в АР автоматически влекут за собой необходимость новых расчетов. Если сдвинуть стену на 10 см, конструктору придётся заново определять все нагрузки и переделывать чертежи.
Конструктор в буквальном смысле подписывается под своей работой и берет на себя ответственность за прочность дома.
Архитектор и главный инженер проекта работают в тесной связке. На фото слева — ГИП Лидия Щебукова, справа архитетор Наталья Мостовая
Что входит в конструктивный раздел?
Фундамент. Тип фундамента зависит не только от характеристик здания, но и от топографии, геологических свойств участка — об этом читайте в нашей статье "Топографическая съемка участка". План фундамента, спроектированного на основе исследований, представляет собой точную схему или чертеж фундаментной плиты, железобетонной ленты, свайного поля и т.п. В зависимости от типа фундамента в КР будут указаны параметры всех его элементов и узлов. Например, для сооружения железобетонной плиты необходимо знать, какую применять арматуру, как ее соединять, где и какого размера делать усиливающие каркасы, какую гидроизоляцию и утеплитель использовать и т.п. Здесь же указывают расположение закладных под коммуникации.
Примеры описания фундамента в Конструктивном разделе. Опалубочный план фундаментной плиты
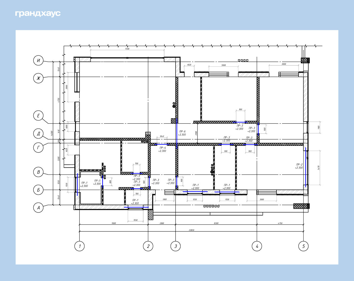
Стены и перекрытия. КР должен содержать кладочные (размерные) планы и развертки стен (последнее обязательно для деревянного дома). В них указано, из какого материала состоят стены и как именно они устроены. Например, для кирпичной стены будут проставлены размеры всех стен, привязок, проемов, простенков и т.п.
Если стена многослойная, то в КР должен быть эскиз устройства ее “пирога” с толщиной всех слоев. Если стена нуждается в армировании и железобетонном поясе, то в КР должны быть чертежи этих элементов со всеми узлами. Для монолитных элементов обязательны опалубочные планы, схемы и узлы армирования.
На каждое перекрытие необходим общий чертеж, а также отдельные чертежи узлов, схем опирания и т.п. Расположение и размер перемычек указывается в отдельном плане, с ведомостью и спецификацией. Если в конструкции предусмотрены такие элементы как балки, колонны, опорные стойки, то на каждый из них должен быть собственный чертеж.
План перемычек 1 этажа
План кровли с расположением всех ее систем: от водосточных труб и желобов до снегозадержателей и выходов вентиляции. План стропильной системы (часто его дополняют трехмерной визуализацией и чертежами отдельных стропил). Каждый узел должен быть снабжен чертежом или схемой. Обязательно должны присутствовать вертикальные разрезы крыши.
Разрез кровли: узел стыковки стропильных ног
Количество чертежей зависит от типа кровли: если используется мауэрлат или подстропильная система, это должно быть отражено в проекте, на каждый элемент должен быть свой чертеж, плюс отдельные чертежи на каждое соединение или узел опирания.
Схема устройства кровельного покрытия должна включать разрез, на котором отмечены все слои с указанием их толщины и используемых материалов.
План подстропильных элементов кровли
В конце каждого из разделов обязательно должны быть спецификации. В них указаны подробные списки материалов с точными описаниями их характеристик (или указанием ГОСТ) и необходимым для стройки количеством. Наличие спецификаций защищает заказчика от перерасхода стройматериалов и недобросовестных подрядчиков. Их отсутствие делает проект, практически, бесполезным.
Примеры спецификаций
Если дом состоит из двух или более этажей, в чертежах обязательно будет указан межэтажный проем, в который устанавливают лестницу. Чертеж самой лестницы может отсутствовать. Это связано с тем, что лестница еще и важный элемент дизайна и ее конструкция сильно зависит от стиля, в котором будет оформлен интерьер. Например, открытая металлическая лестница отлично сочетается с голыми кирпичными стенами, характерными для стиля лофт, но будет выглядеть чужеродно в классическом или деревенском интерьере.
Обычно все чертежи группируют в три раздела: конструкции железобетонные (КЖ), конструкции металлические (КМ) и конструкции деревянные (КД).
Инженерные системы
Этот раздел целиком посвящен удобствам — инженерным коммуникациям и обычно состоит из трех частей:
- отопление и вентиляция;
- водоснабжение и водоотведение;
- электроснабжение.
От последней части заказчики нередко отказываются, чтобы соотнести разводку с дизайн-проектом, разработку которого часто откладывают “на потом”. Многим это кажется оправданным — проще подобрать интерьер для уже построенных помещений. Но это ошибка: воплощение некоторых дизайнерских решений может потребовать серьезных переделок, самая малая и безобидная из которых — снос перегородок. Лучше позаботиться о дизайне заранее.
Располагать розетки, выключатели и освещение стоит только когда уже точно известно, куда встанет мебель и какие элементы декора нуждаются в подсветке. Заказать дизайн-проект или продумать интерьер самостоятельно — решать вам. Первый вариант хоть и кажется более дорогим, на деле может помочь сэкономить, избавив вас от необходимости что-то переделывать.
План электрообудования для одного из проектов Грандхауса - дома-бани
Если вы решили провести газ, план газификации должна составить организация, у которой есть допуск к этим видам работ. После подписания договора с газораспределительной компанией, она выдаст вам технические условия (ТУ) на присоединение к газовой сети. В них будет указана точка подключения, список необходимого оборудования, максимально допустимый расход газа, сроки подключения и действия ТУ. Возможность газификации лучше предусмотреть заранее: тогда не будет проблем с параметрами помещения для котельной, а точка ввода газовой трубы в дом, расположение всех приборов и обвязка котельной будут включены в проект.
Расположение всех кабелей и труб должно четко соотносится с внутренней планировкой дома (из АР) и конструктивными решениями (из КР). Если архитектурный план скачан из интернета, многое может пойти не так. Любая ошибка может отразиться на прочности здания — прокладка труб или пучка проводов потребует слишком большого отверстия в несущей стене или в перекрытии и т.п.
Аксонометрическая схема сетей В1, Т3
Минимум для инженерного раздела — это схемы ввода и вывода труб водоснабжения и канализации, место установки гильзы электрического кабеля и слаботочных систем (в случае прокладки их в земле).
Проект дома включает множество различных схем, чертежей и списков. Разрабатывать каждую часть должен высококвалифицированный специалист в своей достаточно узкой области, труд которого хорошо оплачивается. Поэтому качественный индивидуальный проект не может стоить дешево. Низкая цена говорит либо о ненадлежащем качестве, либо о том, что проект неполон. Из чего складывается стоимость проекта, расскажем в следующей статье.
Реализовать неполный проект не получится — его придется либо дорабатывать, либо строить как придется — то есть, все равно, что вовсе без проекта. Кроме того, неполный проект может содержать ошибки, исправлять которые на этапе строительства будет дорого, а порой и просто невозможно.
Полный и качественно выполненный проект частного дома содержит в среднем 60-80 листов формата А3. Чтобы придать проекту нужный объем, недобросовестные исполнители часто наполняют его типовыми узлами. Отличить такой узел просто: на нем нет размеров, привязок, высотных отметок и т.п.
Грамотный проект позволит вам избежать лишних расходов, соблюсти сроки строительства, не переживать за надежность конструкций и получить именно такой дом, какой хочется.


