Проектированием должны заниматься профессионалы. Но, допустим, план вашего дома вы хотите разработать самостоятельно. С чего начать? Какими правилами руководствоваться, чтобы дом получился удобным и рациональным? И чтобы на его постройку хватило времени и ресурсов?
В этой статье мы расскажем об основных принципах создания планировки дома — без сложных инженерных расчетов и математических формул. Насколько это просто и стоит ли браться за это дело — решать вам.

Шаг первый — предварительные расчеты
Первым делом нужно оценить два главных ограничения. Это параметры вашего участка и ваш бюджет. От площади и формы участка зависит максимальный размер пятна застройки, то есть, насколько большой дом вы сможете построить в принципе. От бюджета — реальная площадь вашего будущего дома.
Составьте схему участка. В этом вам поможет план, полученный от топографов. Большой точности от вас не требуется — используйте лист из тетради в клетку, взяв сторону клетки за полметра. Если план все равно не помещается — уменьшите масштаб. Пусть сторона клетки равняется одному метру.
Отметьте на плане необходимые отступы от границ участка, чтобы определить пятно застройки. Обозначьте окружающие строения, большие деревья, столбы и прочие объекты.
Запросите план территориального зонирования в местном муниципалитете. На нем отмечены два коэффициента: застройки и ее плотности на вашем участке.
Первый нужен для того, чтобы понять, какую часть участка можно застроить.
Второй, это отношение площади участка к максимальной полезной площади с учетом всех этажей каждой постройки.
Коэффициент застройки на участке для ИЖС обычно составляет 0,2, а коэффициент плотности — 0,4. Это значит, что на участке в 10 соток можно застроить 200 кв. м, а максимальная площадь всех этажей не должна превышать 400 кв. м.
Законодательно установленные требования для отступов на частных участках
Определите стороны света. В интернете найдите калькулятор высоты солнца над горизонтом. Введите даты летнего и зимнего солнцестояния. С помощью транспортира полученные углы возвышения светила над горизонтом отметьте в виде лучей, сходящихся к северной границе участка. Вы получите примерные данные о том, какая часть участка будет освещаться, а какая будет в тени.
Отметьте на плане подъездные пути и въезд на участок.
Форму участка и ситуацию с соседними лотами можно определить с помощью Яндекс.Карт (слева) и публичной кадастровой карты Росреестра
Теперь отложите план и возьмите чистый листок бумаги. Нам нужно рассчитать примерный бюджет строительства.
Для начала можно позвонить в несколько строительных компаний и поинтересоваться ценами. Уточняйте, что именно входит в стоимость квадратного метра — только коробка дома или стены с предчистовой внутренней отделкой. Лучше выяснить обе позиции.
Не рассчитывайте на то, что самостоятельное строительство обойдется вам сильно дешевле. Ориентируясь на полученные данные, вы поймете, дом какой площади сможете себе позволить.
Если бюджета не хватает, отложите стройку и подкопите или уменьшите размер дома.
Разберемся с фундаментальным вопросом — количеством этажей. Одну и ту же площадь можно разместить по-разному.
Двухэтажный дом строить выгоднее — меньше фундамент и крыша. При прочих равных он займет меньше площади на участке.
Одноэтажный дом удобнее. В нем нет лестниц — это предпочтительный выбор для семей с детьми и пожилыми людьми.
Если хотите цоколь, учтите, что затраты на него обычно такие же, как на фундамент плюс полноценный этаж. Зато туда хорошо впишутся технические помещения, зоны для отдыха и спорта — сауна, бассейн, тренажёрный зал.
Любительское проектирование дома в программе SketchUp Pro
Теперь, когда нам известны общая площадь и этажность будущего дома, разберемся с составом помещений и их площадью.
Сначала нужно четко определить цели, которым будет служить будущий дом. Проанализируйте свои ежедневные занятия. Подумайте, что добавится к ним, когда дом будет готов.
Лучше всего составить небольшой список, например такой:
- Здесь в доме будем спать;
- Здесь будет моя маленькая швейная мастерская;
- Здесь будем отмечать все важные праздники большим родственным кругом
И так далее. Среди целей какие-то будут неотъемлемыми, а какие-то окажутся второстепенными, необязательными, а может и вовсе надуманными. Стройте оптимальный дом, а не самый большой, какой только влезет на участок.
Определив приоритеты, распределите помещения согласно вашим целям. Чем выше приоритет цели, тем больше внимания стоит уделить конкретной комнате, которая для этой цели предназначена.
Планировку можно разработать как на листке бумаги, так и специальных программах
Например, гостиная для семейных торжеств. Она должна быть достаточно просторна, чтобы вместить всех гостей, в ней нужна столовая зона с большим столом и пространство, которое легко освободить — для танцев. Рядом должен быть санузел, но так чтобы вход в него не был виден из гостиной — во избежание неловкости. Спальни, наоборот, должны располагаться как можно дальше от источников шума. Еще важен красивый вид из окна и выход на южную сторону, где будет терраса.
Для швейной мастерской важно как можно больше естественного света и хорошая вентиляция, площадь же может быть небольшой. Располагаться такое помещение должно так, чтобы стук швейного оборудования никому не мешал, а вам не мешали работать пробегающие мимо дети. И т.п.
Большие спальни имеет смысл делать только, если это не в ущерб другим комнатам. Больше всего времени мы проводим в гостиной или кухне-столовой, поэтому отдавать много пространства под спальню нецелесообразно.
Оптимальная площадь 12 - 15 кв.м. Норвежцы и шведы легко обходятся коморками по 7-8 м.
Детские спальни стоить делать побольше — минимум 14 кв.м. Дети много времени проводят за письменным столом, так что им требуются две зоны — спальная и рабочая, для занятий.
Минимальный набор на семью из 3–4 человек выглядит примерно так:
- кухня — 6-7 кв.м (при наличии столовой зоны в гостиной);
- гостиная — 20-25 кв.м
- 2-3 спальни — по 10-15 кв.м;
Учтите, что санузел, например, это неотъемлемое помещение (по крайней мере, для большинства людей). Оно необходимо для соблюдения гигиены.
Если вы не собираетесь жить в доме в одиночестве, лучше сделать раздельный санузел. Если в доме будут постоянно жить больше 4-х человек, то им понадобится, как минимум, два санузла.

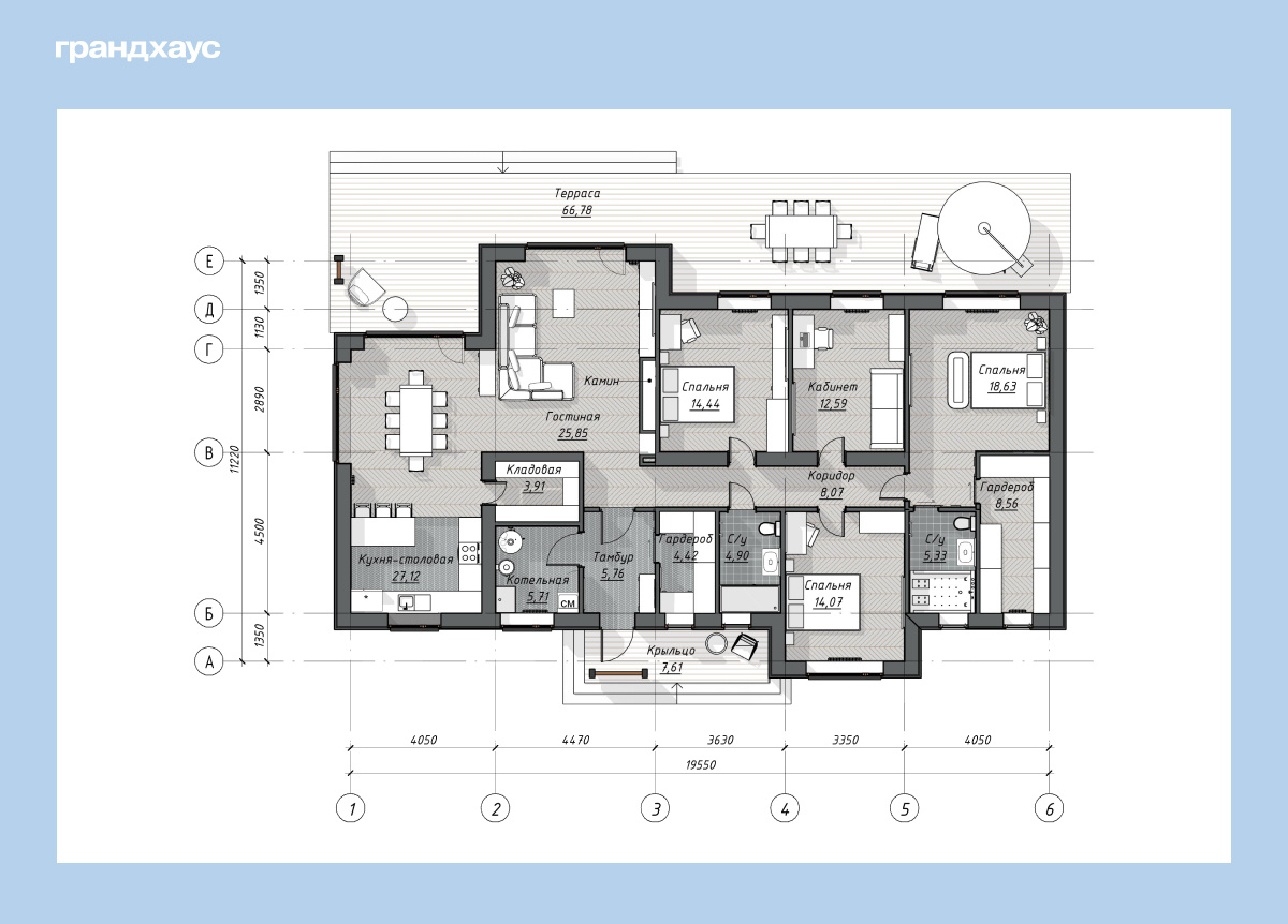
Пример планировки: проект "Грандхаус Зима" серии "Времена года"
(Также смотрите: 27-минутное видео, в котором генеральный директор Грандхауса Никита Кузнецов рассказывает о том, как мы разрабатывали серию домов "Времена года" и какими соображениями руководствовались при решении домашних "логистических" задач)
Шаг второй — точные расчеты
Если добрались до второго шага — вы молодец. Не задумывались о карьере в сфере архитектуры и строительства? Но учтите, дальше проще не станет.
Вычисляем точную площадь застройки. Она зависит от количества несущих стен и перегородок, а также от материала, из которого их будут возводить. Общую площадь всех помещений нужно умножить на коэффициент 1,3–1,4 для каменного дома или 1,15–1,2 для дома из дерева. Лучше брать большее значение — с запасом.
Получив площадь застройки, можно вычислить длину и ширину дома по наружным краям. Учитывайте количество этажей и ограничения, которые накладывает участок. Начинающим архитекторам и проектировщикам рекомендуем ограничиться простой четырехугольной формой здания, избегать эркеров, лишних изгибов и углов.
Сверьтесь с планом участка — поместится ли на пятне застройки получившийся дом?
Время вернуться к черчению. Делаем компоновочную схему дома в масштабе — на листе в клетку. Нужно обозначить оси здания — это его система координат. Она поможет нам точно выровнять положение всех несущих конструкций — фундамента, стен и перекрытий. Оси обозначают буквами и цифрами.
Расстояние между осями не должно быть слишком большим — учитывайте размеры материалов, из которых будут сделаны перекрытия. Например, стандартная длина деревянных конструкций — не более 6 м, ж\б плиты могут достигать 9 м и т.д.
На план наносим проекцию коробки дома с учётом толщины стен. У каменного дома наружные стены в зависимости от выбора материала и технологии отделки будут примерно 500–600 мм толщиной, у деревянного — около 200 мм.
Проект "Печорин" из клееного бруса, 1 этаж
Шаг третий — планировка
Только теперь имеет смысл приступать к планированию внутреннего пространства дома.
Внутри коробки располагаем комнаты. Можно сначала обозначить все помещения примерно — кружками.
Рудиментарная планировка с кружками
Начать стоит со входа в дом — тамбура и прихожей, а после уже размещать всё остальное. Тамбур лучше делать глубиной не менее 1,5 м. Если меньше, будет тесно.
Все жилые комнаты должны хорошо освещаться и располагаться вдоль наружных стен и окон — лучше с южной, восточной и западной сторон. Внутреннюю часть здания, куда не проникает солнце, отдают подсобным помещениям, коридорам и холлам. К северной стене можно вывести кухню, глухую часть гостиной и т.п.
Гостиная и столовая — главное место сбора семьи и гостей, парадная часть дома. Рядом помещают кухню. В современных домах гостиная, столовая и кухня, часто одно большое помещение без перегородок — опенспейс. Его зонируют определенным образом расставляя мебель.
Любительские планировки различной степени детализации
Планировать кухню принято по принципу «рабочего треугольника». В его вершинах располагаются раковина, холодильник и плита. Чем ближе треугольник к равностороннему, тем удобнее будет готовить.
Длина сторон «рабочего треугольника» должна быть не меньше 1,2 и не больше 2,7 м, а его периметр — от 4 до 9 м. Открытые дверцы шкафов, стулья и другие препятствия не должны пересекать стороны треугольника и мешать передвигаться внутри него.
Если ваш дом будет двухэтажным первый этаж отдайте парадным помещениям. Верхний этаж приватный — спальни и кабинеты располагайте там.
Объëм котельной по строительным нормам — не менее 15 кубометров. Здесь нужно учитывать не только площадь, но и высоту потолков. Так при высоте потолка 3 м площадь помещения должна быть как минимум 5 кв.м. Лучше 6 — с запасом.
Размещаем окна и двери. Планируя их количество и расположение, не забывайте сверяться с внешним видом фасада.
Для дверных проёмов рекомендуем использовать следующие размеры: для входной двери — 1000 мм, для жилых комнат — 900 мм, для санузла и подсобных помещений — 800 мм. Полотно двери берут на 100 мм у́же проёма. В деревянном доме стоит добавить запас на обсадную коробку — примерно по 50 мм с каждой стороны.
Входная дверь и дверь в котельную должны открываться наружу. Межкомнатные, обычно открываются внутрь того помещения, которое больше по площади. Двери санузлов, как правило, наружу, но тут возможны исключения.
Планируя проемы сразу проверьте, не упираются ли двери во что-то и не конфликтуют ли они друг с другом.
Планировка проекта "Бродский"
Шаг четвертый — лестницы и вентиляция
Нужно разместить вентиляционные каналы и лестницы. Здесь в любом случае лучше проконсультироваться со специалистом. Основное правило размещения вентиляции простое: выходы (вытяжка) должны быть на кухне и в мокрых зонах — санузлах, входы (приток) должен осуществляться через жилые помещения.
Но чтобы правильно все рассчитать, обеспечить эффективный воздухообмен и избежать при этом сквозняков и выхолаживания помещений нужно обладать специальной квалификацией.
Грамотно разместить вытяжные каналы, рассчитать их сечение и выбрать подходящую конструкцию тоже не так уж просто.
В интернете есть специальные калькуляторы, но они работают только в самых простых случаях и результат все равно не гарантирован.
Что касается лестницы, то ее лучше всего размещать ближе к центру дома. Второй по популярности вариант — ближе ко входу в дом, но так, чтобы путь на лестницу не пересекал грязную зону перед входной дверью. Отлично, если совмещаются все три условия.
Оптимальная ширина ступени (проступь) равна 280–350 мм, высота (подступенок) — 140–170 мм. Если габариты позволяют, лестницу лучше делать пошире — закладывайте хотя бы 1000–1200 м. Двухпролетная лестница удобнее и безопаснее одномаршевой.
Некоторые из подсказок о том, как правильно "просчитать" лестницу. К сожалению, гарантии правильности расчетов вместе с подсказками не предоставляются.
Шаг пятый — расставляем мебель
Чтобы понять, удобно ли будет пользоваться помещением, нужно расставить по местам мебель. Для этого придется перенести на план проекции всех предметов в соответствии с их размерами и расстояниями между ними. Минимальная ширина прохода для комфортного перемещения — 70 см.
Перед шкафами и комодами лучше оставить не меньше 80 см: распашные дверцы и выдвижные ящики должны полностью открываться и не становиться препятствием или угрозой. Если не хочется ломать голову в поисках удачных решений, на этом этапе стоит обратиться к дизайнеру интерьеров.
"Расставить мебель" можно как от руки, так и в специализированных программах.
Принципы удачной планировки
Если добрались до этого этапа — поздравляем! Вы сделали свою первую планировку! Но и это еще не конец.
Как понять, насколько ваша планировка удачная? Будет ли удобно жить в здании, которые вы спланировали?
Попробуйте закрыть глаза и пройтись по своему будущему дому — все ли вам нравится? Все ли на своем месте?
Подробно распишите распорядок своего рабочего и выходного дня. Из каких действий он состоит? Подъем, умывание, завтрак, путь на работу и обратно, прогулка с собакой, просмотр сериала, прием гостей, поездка за продуктами… Все эти действия диктуют маршруты, которыми вы и ваши близкие двигаетесь по дому. Наложите их на план.
Проигрывайте мысленные сценарии. Например, вы пришли с прогулки с собакой. Удобно ли расположена лапомойка? Может ли питомец наследить там, где не следует? Или вы приехали из магазина. Насколько далеко вам придется нести продукты? Возможно, стоит подумать о проходе в кладовку прямо из гаража?
При разработке наших проектов, мы моделируем различные сценарии внутридомовой логистики
Попробуйте учесть режим и привычки каждого из домочадцев. Кто встает на рассвете, а кто ложится после полуночи, а потом спит до полудня? Сразу станет ясно, кому отдать спальню на восточной стороне, а кому на западной.
Сколько выходов из дома вам нужно? Первый — парадный — понятно, необходим. Он расположен со стороны улицы, здесь вы попадаете в дом, когда возвращаетесь, здесь вы встречаете гостей. Возможно, второй стоит сделать из гостиной — для выхода в сад. А третий из подсобки, чтобы выносить мусор и быстро попадать в котельную.
Террасу или веранду лучше устроить на солнечной стороне и защитить от ветра, сделать крышу или навес от дождя. Тогда здесь будет комфортно почти круглый год. Глубина площадки не должна быть менее 3 м, иначе будет тесно.
Пристройки. Иногда не получается воплотить все, что хочется, сразу. Это не беда. Кладовую, гараж, котельную, веранду и даже еще одну спальню можно пристроить к дому позже. Руководствуйтесь тем, чтобы новые помещения не ограничивали естественное освещение жилых комнат — планируйте такие вещи заранее. Также не стоит забывать об отступах от соседских заборов и дороги.
Общие рекомендации. Старайтесь планировать помещения так, чтобы при входе в дом и в комнаты взгляд цеплялся за что-то красивое. Очень удачно, если при выходе из прихожей открывается вид на просторный опенспейс — кухню-гостиную. Не менее интересный вариант — вид на лестницу с интересным дизайном. В принципе, это может быть что угодно — вид из окна, картина, растение, акцентная стена. Все зависит от вашего вкуса и фантазии.
Кровать в спальне или унитаз в санузле не должны попадаться на глаза первыми.
Идеальная форма комнаты — квадрат либо прямоугольник с соотношением сторон 3:4 или 1:2. Длинные и узкие жилые комнаты менее комфортны, в них сложнее разместить мебель.
Не слишком экономьте на площади ванной и кухни — если они окажутся тесными, жалеть об этом вы будете ежедневно.
Если вы удаленщик, оборудуйте себе отдельный кабинет. Если у вас частная практика и вы принимаете посетителей, стоит организовать для них отдельный вход.
Учитывайте толщину внутренней отделки стен. Например, штукатурка «съест» около 20 мм, плитка с учётом клея еще около 20 мм, гипсокартон 12–13 мм.
Планируйте дом с учётом будущих перемен — когда у вас появятся дети, где вы их поселите и что будете делать с детскими, когда дети уедут?
Вывод
Самостоятельно сделать планировку можно. Стоит ли она ваших усилий? Решать только вам. Получится ли она качественной? Время покажет. Стоит ли рисковать самой дорогой и важной покупкой в жизни, каковой для большинства из нас является дом? Определенно, нет!
Хотите большего, чем скромный садовый домик? Обращайтесь к профессионалам! Строить без проекта, значит рискнуть не только удобством и внешним видом здания, но и собственным бюджетом: начиная стройку, вы не будете знать, во сколько вам обойдется ее закончить.
Исключите риски. С качественным проектом вы как будто приходите в фирменный автосалон: все расходы известны заранее, а результат гарантирован. Причем, вы его уже видели — будет именно так, как на картинке. Полный набор чертежей и документов обойдется не дороже 5-ти % от стоимости дома. Сумма не маленькая, но не дороже ли ваше спокойствие и гарантированный результат?
Тем более, что начав строить без проекта вы наверняка потратите больше. А готовый дом на фоне соседей будет выглядеть также, как собранная на свалке самоделка рядом с премиальным автомобилем.


